Price Consulting, Inc.
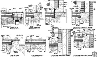
PCI routinely performs design reviews of construction drawings, details, and specifications that have been prepared by others. A report of our findings is presented for consideration prior to construction.
• Documents are reviewed for content, clarity, compatibility, and conformance with project conditions, generally accepted roofing industry standards, manufacturer's requirements, and the level of maintenance anticipated.
• Drawings are reviewed to determine the need for additional detail in order to comprehensively cover special conditions occurring on the project.
Texas Board of Professional Engineers Professional Registration Number F-3814
Idaho Board of Licensure of Professional Engineers Registration Number 4551
Find us on
Copyright © Price Consulting, Inc. All Rights Reserved